Residenz 11 route de Gilsdorf Appartement A-N2-4
RESERVIERT
Baustart Herbst 2026
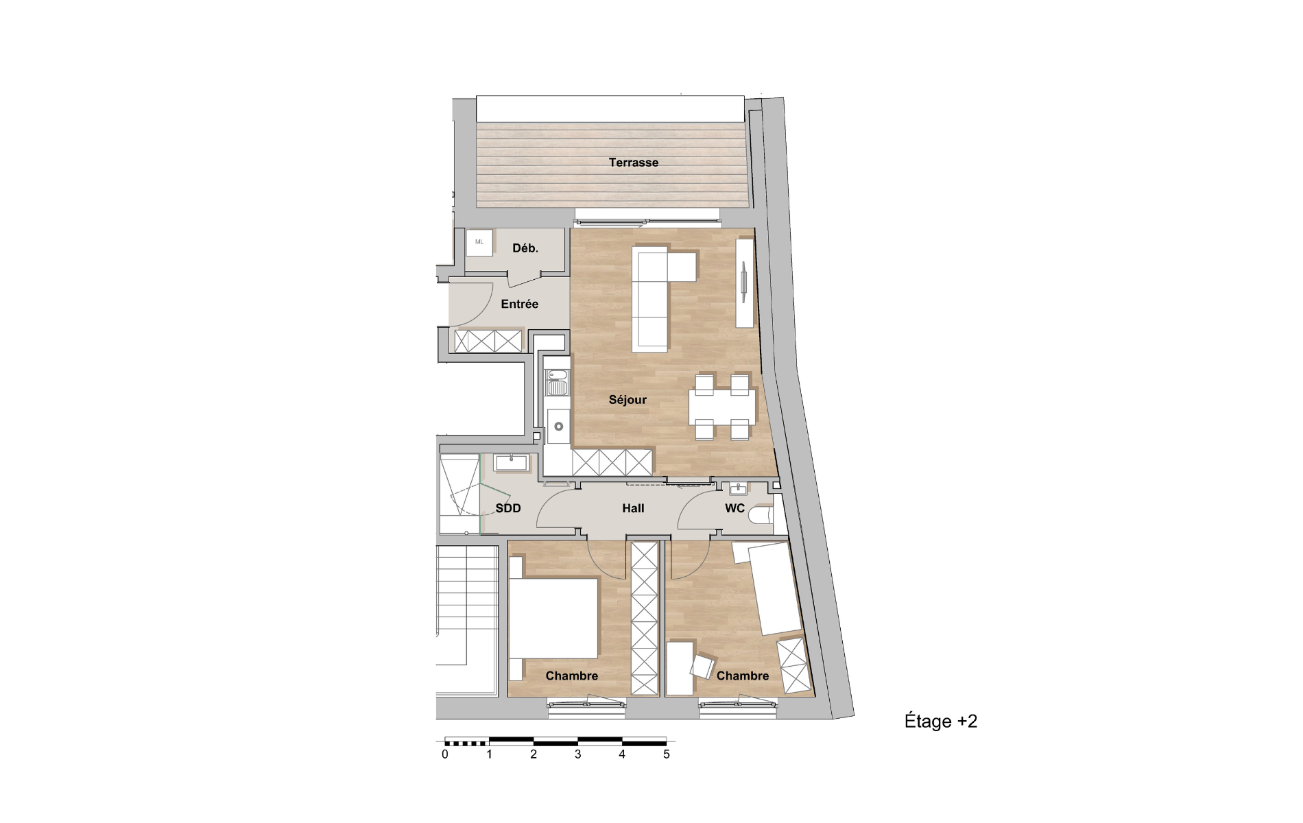
Wohnfläche: 69.30 m²
Zimmer: 2
Bäder: 1
Stellplätze: 1
Terrasse: 12,19 m²
Etage: 2
Energieklasse: A-B
Baustart Herbst 2026
Wohnfläche: 69.30 m²
Zimmer: 2
Bäder: 1
Stellplätze: 1
Terrasse: 12,19 m²
Etage: 2
Energieklasse: A-B
Die Residenz „11 route de Gilsdorf“ liegt im Zentrum von Diekirch direkt an der Sauer. Die Fussgängerzone, ein Supermarkt, Bäckereien, ein Metzger, mehrere Restaurants, Geschäfte und mehrere Bushaltestellen sind zu Fuss innerhalb von wenigen Minuten erreichbar.
Der Rad- und Spazierweg an der Sauer Richtung Echternach und Ettelbrück lädt zu kurzen bis ausgedehnten Radtouren und Wanderungen ein. Mehrere Spielplätze befinden sich in der näheren Umgebung.
Diekirch hat eine sehr gute Anbindung an den öffentlichen Transport (Bahnhof mit direkten Verbindungen nach Luxemburg-Stadt und Nordstadbus). Auf der B7 und A7 ist man mit dem Auto in wenigen Minuten.
Kindertagesstätten, die Grundschule, Maison Relais, mehrere Gymnasien, die Hotelfachschule und die Ackerbauschule sind vor Ort.
Diekirch liegt in der Nordstad, welche ein außerordentlich aktives Vereinsleben mit freiwilliger Feuerwehr, Fußball, Volleyball, Basketball, Tischtennis, Schwimmen, Leichtathletik, Indiaca, Triathlon, lokale Musikgesellschaften, Musikkonservatorien, uvm. bietet.
Distanzen:
Ettelbruck – 5 km
Mersch – 19 km
Echternach – 29 km
Luxemburg-Stadt – 35 km
Flughafen – 37 km
Die Residenz besteht aus 5 Wohnungen mit privaten Kellerräumen, einem Fahrrad/Kinderwagenabstellraum im Erdgeschoss, 6 Innen- und 2 Außenparkplätzen. Die Residenz ist ebenerdig zugänglich und verfügt über einen Aufzug.
In gewohnt SOLIDer Qualität erhalten Sie eine moderne Wohnung mit hohem Standard inklusive Malerarbeiten.
Die Wohnung N°A-N1-1 auf der 1. Etage mit 90.71 m² Wohnfläche und insgesamt über 300 m² Außenfläche setzt sich wie folgt zusammen:
Wohnzimmer mit offener Küche, Badezimmer mit Dusche und WC, separates WC, 2 Schlafzimmer, Eingangsbereich/Hall, Débarras , Balkon 22,82 m² und Terrasse 40,58 m² im Erdgeschoss mit über 250 m² Gartenfläche (erreichbar vom Balkon über eine Außentreppe).
1 Innen- und 1 Außenstellplatz
Kellerabteil 4,99 m² im Erdgeschoss
Heizung: Luftwärmepumpe
Gemäß den Bestimmungen der großherzoglichen Verordnung vom 30. Juli 2002 ist der Preis inklusive 3% Mehrwertsteuer.
S-Buildings S.A.
27, rue de la Gare
L-9122 Schieren, Luxemburg
zum Google Maps Routenplaner
Tel: +352 – 2680 3791-62
E-Mail: info@s-buildings.lu
Mo – Fr: 07:30 – 12:00 & 13:00 – 16:00 Uhr

Residenz 11 route de Gilsdorf Appartement A-N2-4